
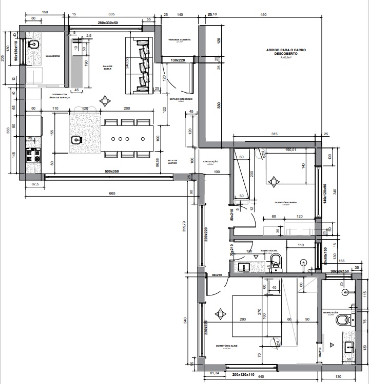
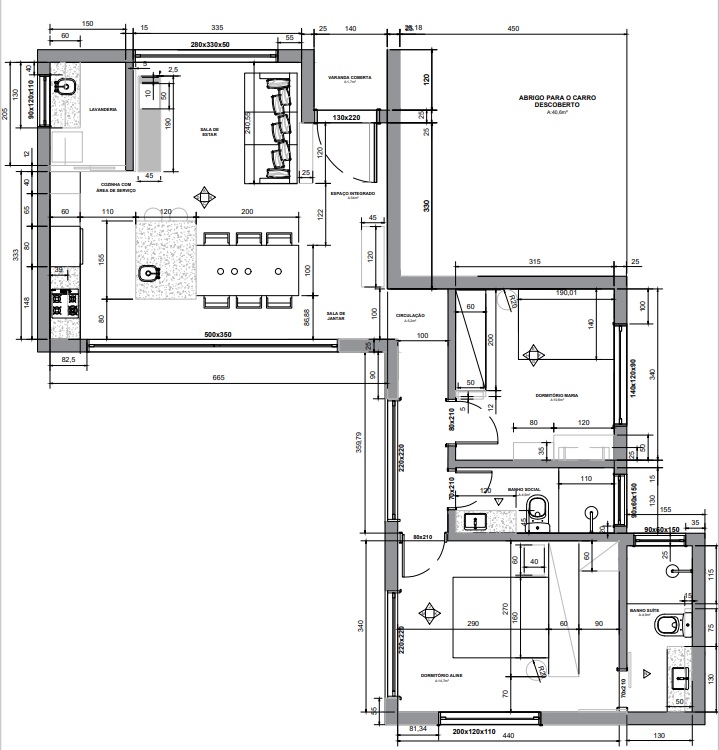
“O que tem dentro importa!” Seguindo essa premissa, todos os nossos projetos arquitetônicos são pensados de dentro para fora, primeiramente atendendo às necessidades funcionais da família, através da organização do layout interno, fluxos e disposição do mobiliário dentro da expectativa de nossos clientes!

Normalmente desenvolvemos o projeto arquitetônico, os complementares técnicos (hidrosanitário, elétrico e estrutural) e o projeto de interiores, que compreende todos os detalhes internos, como definição e paginação dos revestimentos de piso e paredes, assim como projeto de forro e iluminação até o detalhamento do mobiliário e demais definições que o compõem.




Neste momento, em outubro/2023 o projeto da Casa Alma esta na etapa de execução, com previsão de finalização em fevereiro/2024!
