

No projeto do #Ape23 conseguimos executar uma obra pesada, enquanto os clientes estavam fora, do país! Sim, o casal morava na China e estava de longe acompanhando toda a obra, sem se incomodar com pó e o barulho, maiores vilões de uma reforma residencial!

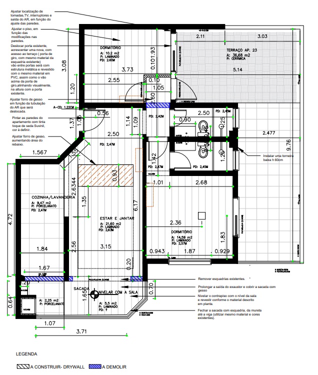
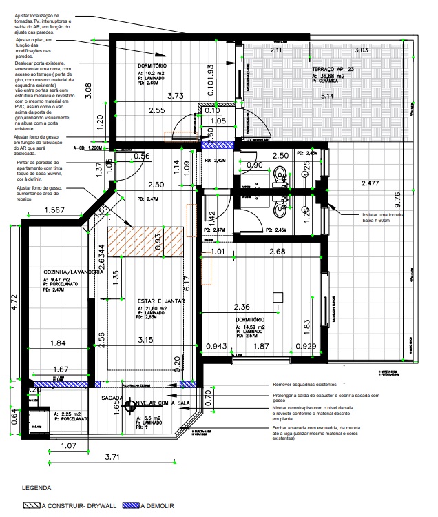
Algumas paredes foram removidas, para integrar a sacada com churrasqueira com o espaço social, alinhamos o contrapiso e seguimos com os pisos até a sacada!
Também foi necessário remover a porta de um dos dormitórios e reposicionar a porta janela, para que o casal pudesse utilizar o terraço junto ao espaço social, sem ter que passar pelos dormitórios para acessar!
Planejamos tudo e aos poucos a obra foi acontecendo de forma tranquila! Conseguimos contratar a própria construtora do empreendimento para fazer a obra, o que também nos proporcionou uma garantia maior sobre os serviços que seriam executados!
O apartamento ficou um sonho! Aproveitamos todos os revestimentos do imóvel e escolhemos a marcenaria mais lisa, para acompanhar o mood, deixando o destaque para a pedra do painel da TV! Gostou?















