Home Office

Acima segue a evolução deste projeto de home office, que resultou na busca de informações precisas

da função deste espaço, frequência de uso, dimensões e quantidades de objetos que seriam armazenados.

Como neste espaço já um armário em laca branca alto brilho, bem neutro, o piso branco, forro igualmente em

branco, nas paredes foi utilizado uma cor suave em tom de lilás. O mobiliário do home office seguiu na mesma linha do armário,

na cor branca, porém em MDF acabamento melamínico, em função do uso, laca não é muito resistente em

superfícies, principalmente com o uso diário.

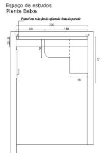
Os alinhamentos foram seguidos acompanhando a altura da porta, o espaço foi totalmente aproveitado. Atrás da

porta projetei um armário todo fechado, pois o seu uso será variado, armazenando tanto sapatos quanto arquivos e

documentos, mudando a idéia inicial de um móvel mais aberto, tudo em função da praticidade e funcionalidade do espaço.

Para proporcionar mais leveza ao móvel apenas duas prateleiras sobre o tampo, sendo a inferior com iluminação

sobre bancada, proporcionando conforto para execução de trabalhos e estudo.

O toque de personalidade foi dado na escolha do tecido que reveste o painel, importante para ocultar a fiação que

sobe até a prateleira.

A suavidade do móvel todo suspenso diferencia este projeto simples e moderno.

2 comentários Adicione o seu

  1. Avatar de Carla Assmann Duarte Carla Assmann Duarte disse:

    Oii Greice… parabens querida por seu blog e todos estes ambientes lindos que faz… muito sucesso sempre. Beijoss

Deixe um comentário